Ваше местоположение: США, Массачусетс, Кембридж
Тип
Услуги
Категории
Гальваника, Готовые изделия, Резка металла, Токарные работы, Резьбошлифовальная обработка
Местоположение
Кемерово (8936 км)
Имя
Александр
Телефон
Эл. почта
Контакты доступны после оплаты рекламы
Описание

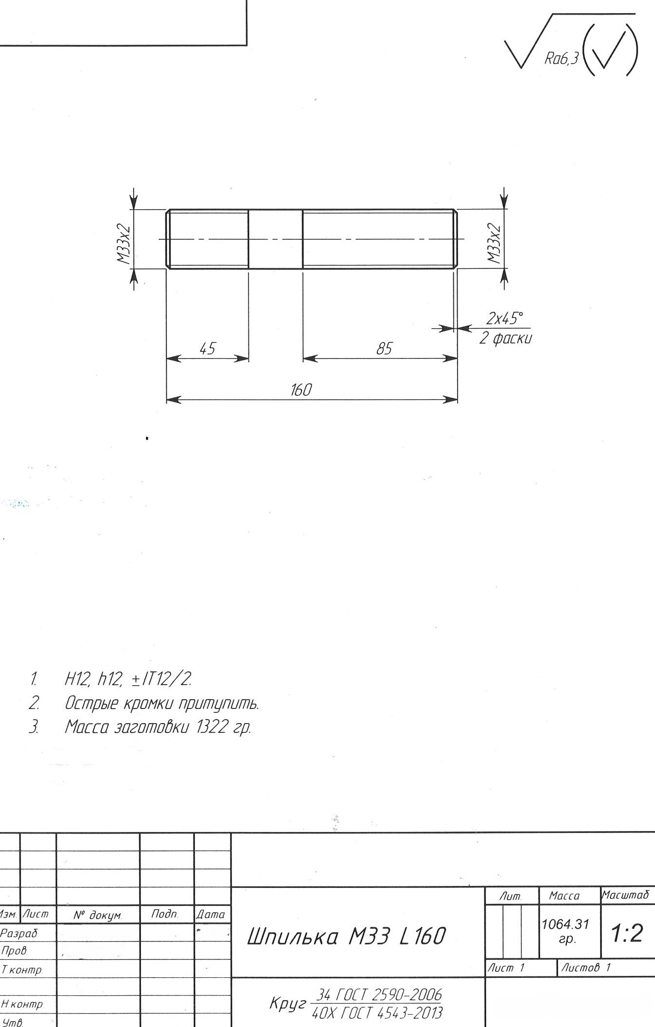
Открыта заявка на изготовление по чертежу: Шпилька М33х2-L160. В случае нарезной резьбы, сталь должна применяться не ниже Ст40Х., в случае накатной сталь не ниже Ст.35 Без термообработки. По торцам фаски 2х45*. Проходная цена 230 руб./шт с НДС., 1шт — 1кг., с логистикой получаем не дороже 255 руб/шт с НДС.Готовые изделия должны быть подвергнуты химическому покрытию (как защита от ржавчины, любое бюджетное удобное для Вас — получаем обработанную химическим покрытием 016(Ц.хр.6мкр.) — нам нравится). Пробная партия по 300шт. По году потребность составляет до15 000шт. Если по качеству вопросов не будет возникать, сможем продолжать работу в дальнейшем. На объёмы гарантии и обещания не даём, заказываем по необходимости закрытия потребностей производства! Если договоримся о цене и по качеству вопросов не будет возникать, сможем продолжать работу в дальнейшем. Условия: Работаем по нашему договору поставки с НДС, после предоставления обязательного пакета документов при заключении договора поставки. Поставки до терминала в г.Кемерово ТК ЖелДорЭкспедиция. Поставщик упаковывает, доставляет до ближайшего терминала ТК ЖДЭ за свой счёт. Покупатель оплачивает услуги ТК ЖДЭ. Упаковка любая обеспечивающая сохранность груза и исключающая потери товара. В случае согласования службами (юридической, финансовой, безопасности) стандартные условия оплаты: 50% предоплата, остальные 50% в течении 3 рабочих дней, после приёмки в ТК и проверки по качеству на складе Покупателя. Потенциал наших потребностей производства разноразмерных деталей: торсионных валов, фланцев двигателей, пальцев сферических, крышек, гаек и шпилек достаточно широк!

Войдите на сайт, чтобы отправить предложение