Внимание! На сайте появились неблагонадежные исполнители. Подробности
Ваше местоположение: США, Калифорния, Эль-Монте
(Архив) Заказ #15788 от 10.07.2025
- Тип
- Услуги
- Категории
- Зубофрезерная обработка
- Местоположение
- Беларусь, Минск (9689 км)
- Имя
- Владимир
- Телефон
Эл. почта - Контакты доступны после оплаты рекламы
- Описание
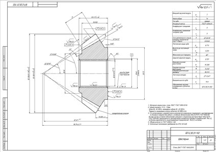
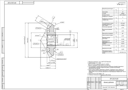
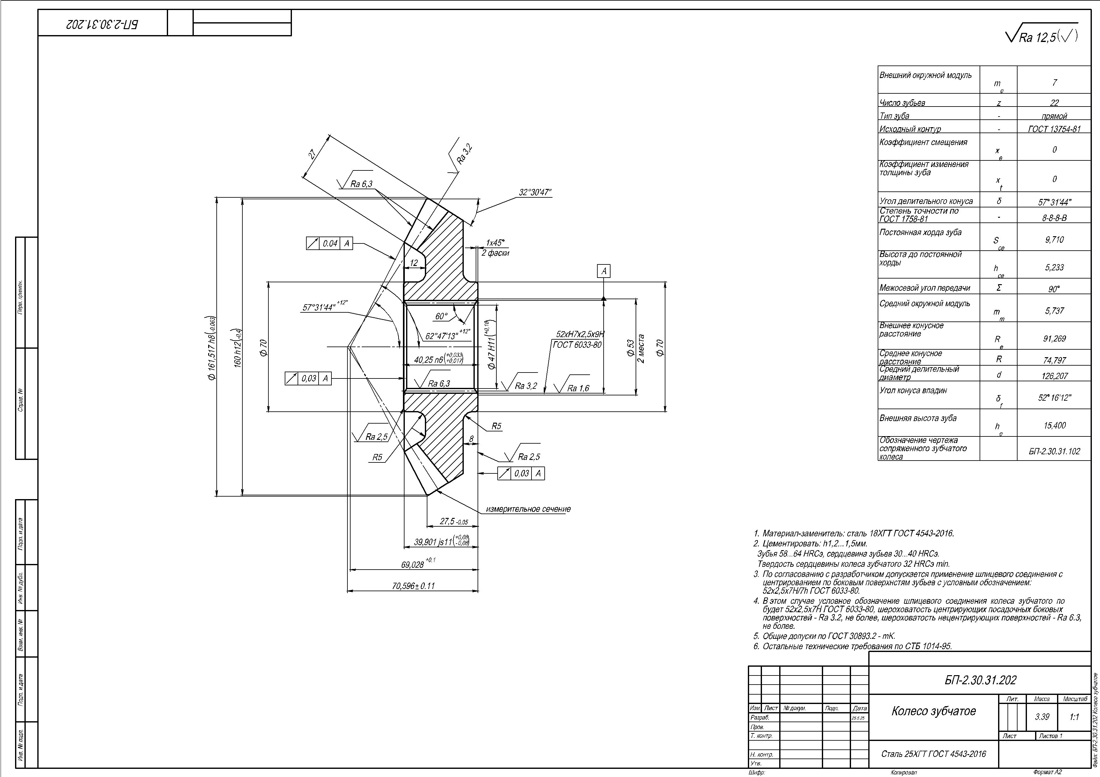
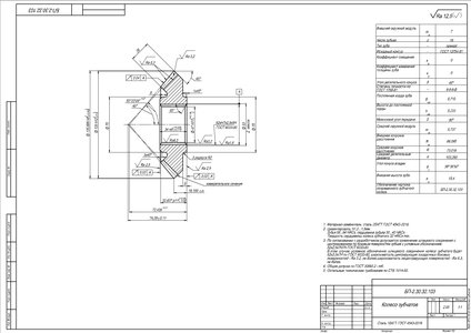
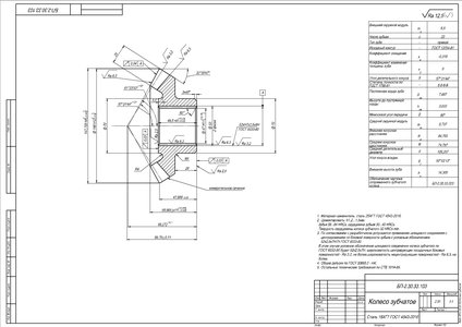
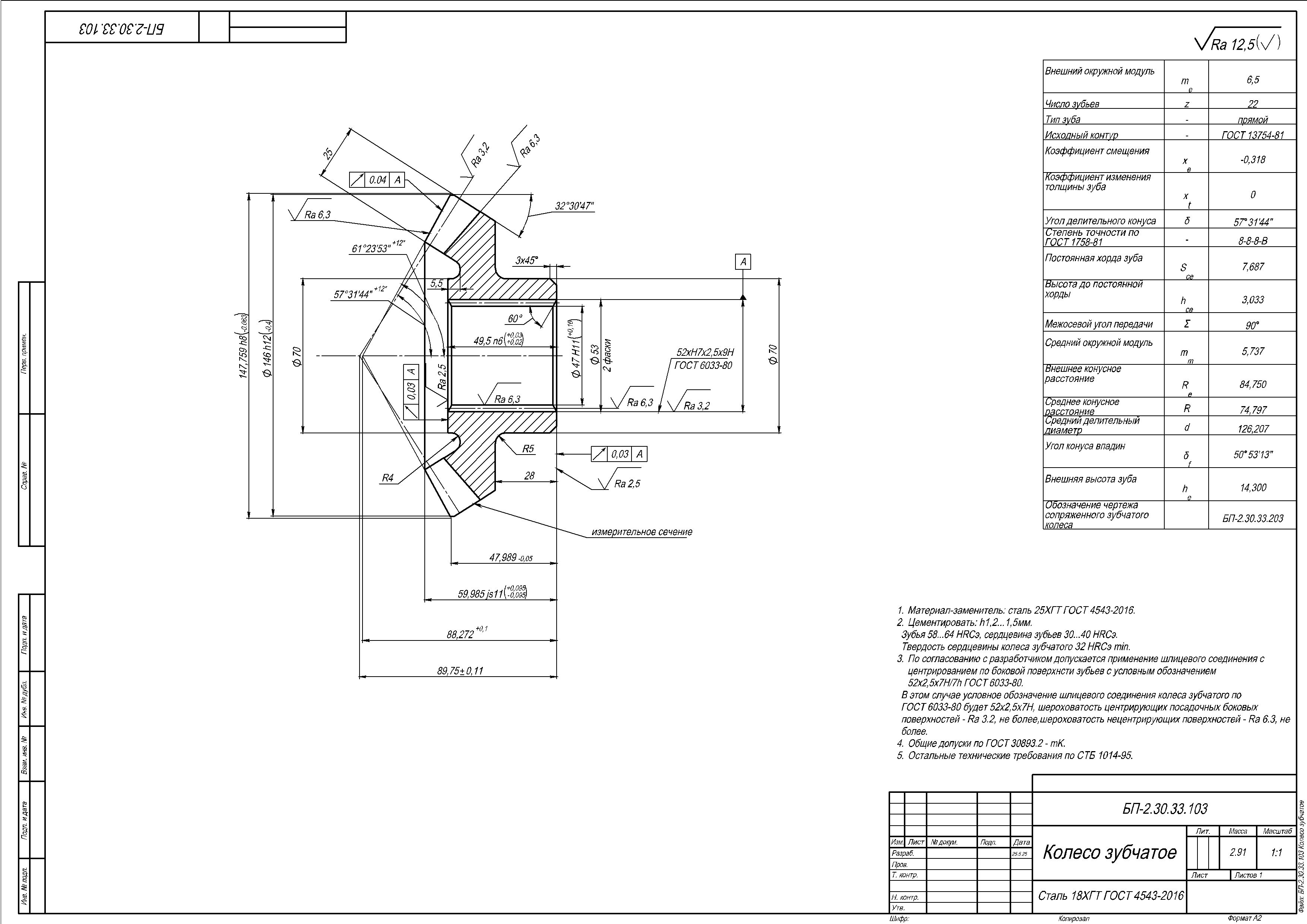
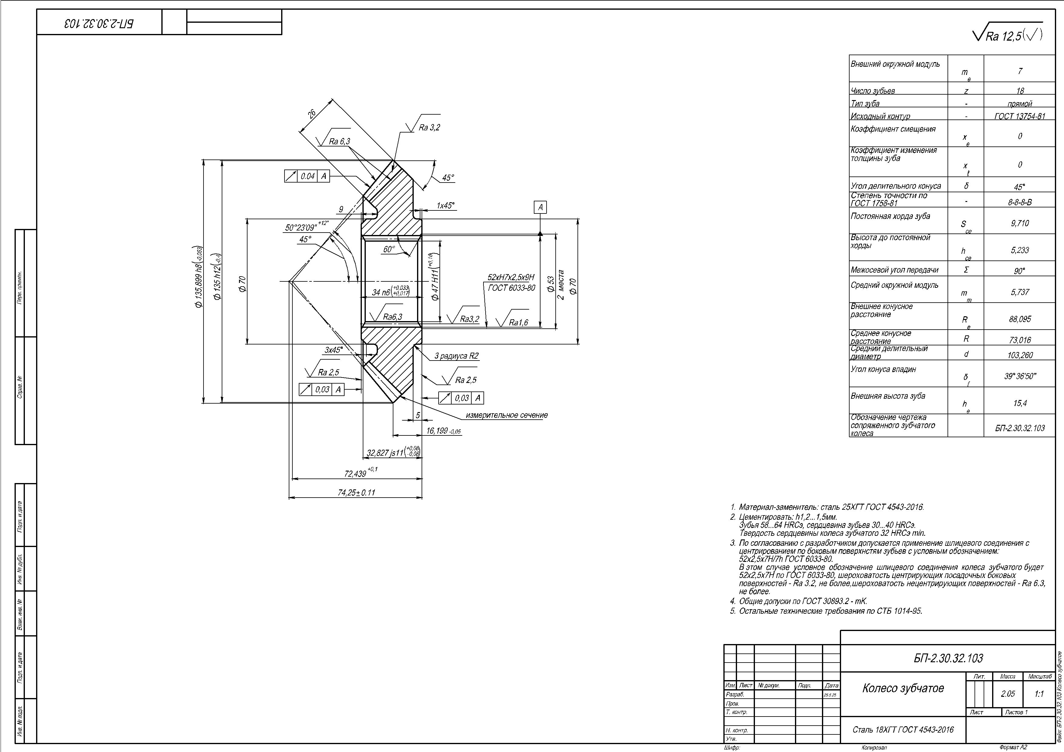
Требуется механическая обработка конических зубьев шестерен (зубчатых колес), в данный момент, по 2шт каждого вида. Тип зубьев - прямой.
Ищем Исполнителя на постоянную основу сотрудничества. Готовность деталей к обработке ожидается через месяц.
Предложения по заказу
Свердловская область, Екатеринбург
(9906 км)
03.07.2025 12:03 - Андрей Плотников
Готовы выполнить полное изготовление по 9-ой степени точности (стабильно)
Особенно интересует сотрудничество на постоянной основе
Срок: 30 календарных дней
Стоимость: договорная
Стоимость: договорная
Россия, Татарстан, Казань
(9949 км)
26.06.2025 11:44 - Yuri Pleshkov
Здравствуйте!
Можем нарезать зубья на вашей заготовке от 2000 до 3000рублей
Можем выполнить полностью из нашего материала от 4000 до 6000 рублей.
С Уважением, Юрий
Срок: 45рабочих дней
Стоимость: 2000
Стоимость: 2000
Пенза
(10174 км)
08.06.2025 09:53 - Андрей Солдаткин
Имеем возможность нарезки зубьев. Цена 5000-7000р/шт. в зависимости от диаметра.
Срок: 20дн
Стоимость: 5000-7000р
Стоимость: 5000-7000р